产品搜索
公司:最新HTH华体育app下载
电话:
手机:13120937397
传真:
邮箱:408823840@qq.com
网址:www.chefcomm.com
Q347F-16-40C铸钢固定球阀
Q347F-16-40C铸钢固定球阀介绍:
Q347F铸钢固定球阀是新一代高性能球阀,适用于长输管线和一般工业管线,其强度、安全性、耐恶劣环境性等在设计时进行了特殊考虑,适用于各种腐蚀性和非腐蚀性介质。它与浮动球阀相比,工作时,阀前流体压力在球体上产生的作用力全部传递给轴承,不会使球体向阀座移动,因而阀座不会承受过大的压力,所以固定式球阀的转矩小、阀座变形小,密封性能稳定、使用寿命长,适用于高压、大口径场合。先进的弹簧预阀座组件,具有自紧特性,实现上游密封。每阀有两个阀座,每个方向都能密封,因而安装没有流向限制,是双向。此阀一般水平安装。
固定球阀有二块式和三块式两种阀体结构,中法兰用螺栓连接,密封采用增强聚四氟乙烯镶入不锈钢圈内,钢圈后部没有弹簧保证阀座紧贴球体,保持密封。上下阀杆均没有PTFE轴承,减少磨擦,操作省力,小轴底部没有调整片,保证球与密封圈的接处位置。全通径:阀门流量孔径与管线内径一致,以便管线清扫。
Q347F-16-40C铸钢固定球阀特点:
两分式和三段式固定球阀又称侧装分体式球阀,将阀体沿与阀门通道轴线相垂直的截面分为不对称的左右两半,它在管道上主要用于切断、分配和改变介质流动方面。它的枢轴结构保证了准确的球体位置。标准阀座采用弹簧结构,将阀座推向球体,保证了良好的低压密封性能。该球阀阀前,阀后阀座都能密封,即所谓双向密封特性,利用自带的排放阀,阀体中腔可向外排放。枢轴采用防吹出保护结构,低摩擦系数的轴承等。具有性能优异,可靠性高,用途广泛,价格合理等优点。
1、阀座采用弹簧结构,将阀座推向球体,保证了良好的低压密封性能
2、固定球阀阀前,阀后阀座都能密封,即所谓双向密封特性,利用自带的排放阀,阀体中腔可向外排放
枢轴采用防吹出保护结构,低摩擦系数的轴承等。具有性能优异,可靠性高,用途广泛
Q347F-16-40C铸钢固定球阀产品用途:
适用于化工、石油、天然气、冶金、等行业及含硫化氢介质、杂质多、腐蚀严重的天然气长输管线。
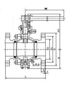
Q347F-16-40C铸钢固定球阀结构图:

Q347F-16-40C铸钢固定球阀主要技术参数:
试验压力 |
公称压力(Mpa) |
压力级(Class) |
JIS(Mpa) |
|||||||||
1.6 |
2.5 |
4.0 |
6.4 |
10.0 |
150 |
300 |
400 |
600 |
900 |
10K |
20K |
|
强度试验 |
2.4 |
3.8 |
6.0 |
9.6 |
15.0 |
3.1 |
7.8 |
10.2 |
15.3 |
23.1 |
2.4 |
3.8 |
密封试验 |
1.8 |
2.8 |
4.4 |
7.0 |
11.0 |
2.2 |
5.6 |
7.5 |
11.2 |
16.8 |
1.5 |
2.8 |
气密试验 |
0.5~0.7 |
|||||||||||
工作温度 |
PTFE≤150℃PPL≤300℃碳纤≤350℃ |
|||||||||||
适用介质 |
C:水、油、蒸气P:硝酸类(温度≤200℃)R:醋酸类(温度≤200℃) |
|||||||||||
Q347F-16-40C铸钢固定球阀主要零部件材料:
零件名称 |
材料 |
|||
材料代号 |
C |
L |
P |
R |
|
WCB |
ZGOOCr17Ni14Mo2 |
ZG1Cr18Ni9Ti |
ZG1Cr18Ni12Mo2Ti(CF8M) |
球体 |
2Cr13 |
ZGOOCr17Ni14Mo2 |
ZG1Cr18Ni9Ti |
ZG1Cr18Ni12Mo2Ti(CF8M) |
阀杆 |
2Cr13 |
316L |
1Cr18Ni9Ti(304) |
1Cr18Ni12Mo2Ti(316) |
阀座密封面 |
PTFE、碳素纤维+PTFE、对位聚苯 |
|||
螺柱螺母 |
3535CrMoA(B7)45(2H) |
2Cr13(420)1Cr18Ni91Cr17Ni2(431) |
||
填料 |
V型PTFE、柔性石墨 |
|||
Q347F-16-40C铸钢固定球阀主要外形与连接尺寸:
公称压力 |
公称 |
L |
H(mm) |
重量(kg) |
||||||||||
mm |
mm |
Q47 |
Q347 |
Q647 |
Q947 |
Q47 |
Q347 |
Q647 |
Q947 |
Q67 |
Q367 |
Q667 |
Q967 |
|
4.0 |
100 |
305 |
178 |
416 |
470 |
55 |
90 |
110 |
80 |
85 |
105 |
|||
125 |
381 |
252 |
542 |
520 |
80 |
120 |
145 |
75 |
115 |
140 |
||||
150 |
403 |
205 |
572 |
538 |
140 |
170 |
205 |
125 |
155 |
190 |
||||
200 |
502 |
398 |
736 |
580 |
220 |
250 |
275 |
200 |
230 |
255 |
||||
250 |
568 |
495 |
890 |
637 |
365 |
310 |
335 |
340 |
295 |
310 |
||||
300 |
648 |
580 |
910 |
684 |
530 |
485 |
475 |
500 |
455 |
445 |
||||
350 |
762 |
625 |
1020 |
796 |
740 |
600 |
600 |
695 |
555 |
545 |
||||
400 |
838 |
720 |
1080 |
842 |
900 |
955 |
895 |
845 |
900 |
840 |
||||
450 |
914 |
770 |
1120 |
874 |
1170 |
1250 |
1105 |
1105 |
1195 |
1045 |
||||
500 |
991 |
840 |
1150 |
904 |
1340 |
1550 |
1360 |
1270 |
1480 |
1290 |
||||
600 |
1143 |
1050 |
1210 |
1120 |
1580 |
1740 |
1495 |
1480 |
1680 |
1405 |
||||
700 |
1245 |
110 |
1300 |
1218 |
1885 |
2000 |
1850 |
1785 |
1900 |
1750 |
||||
800 |
1397 |
1150 |
1460 |
1328 |
2190 |
2310 |
2050 |
2070 |
2200 |
1930 |
||||
订货须知:
一、①Q347F-16-40C铸钢固定球阀产品名称与型号②Q347F-16-40C铸钢固定球阀口径③是否带附件以便我们的为您正确选型。
二、若已经由设计单位选定Q347F-16-40C铸钢固定球阀型号,请按Q347F-16-40C铸钢固定球阀型号直接向我们标光阀门销售部订购。
三、当使用的场合非常重要或环境比较复杂时,请您尽量提供设计图纸和详细参数,由我们标光阀门专家为您审核把关。
尊敬的客户:
欢迎您访问我们的网站//www.chefcomm.com,首先感谢您对我们标光阀门的关注,如果您对我们的产品、服务有任何建议或者疑问的话,请立即联系我们!我们一定会尽心尽力为您提供优质的服务!!!




