产品搜索
公司:最新HTH华体育app下载
电话:
手机:13120937397
传真:
邮箱:408823840@qq.com
网址:www.chefcomm.com
Q341F-10/16/25P不锈钢涡轮球阀
Q341F-10/16/25P不锈钢涡轮球阀简介:
不锈钢涡轮传动法兰球阀Q341F在各种阀门中,球阀的流动阻力最小,全径球阀打开时,球体通道、阀体通道和连接管径相等并成一直径,介质几乎可以毫无损失的流过,是一种重要的阀类。法兰球阀广泛的应用在石油炼制、化工、造纸、制药、食品、水力、电力、市政、钢铁等行业。
Q341F-10/16/25P不锈钢涡轮球阀工作原理:
Q341F不锈钢蜗轮球阀是在原有的球阀阀杆上接止齿轮箱,只需用旋转很小的转动力矩就能实现开关。蜗轮传动旋转90°即可全关全开,启闭迅速。一般顺时针转动为打开,逆时针转动为关闭。
Q341F-10/16/25P不锈钢涡轮球阀特点:
(1)流体阻力小、结构紧凑、设计合理、通道流畅。
(2)密封面采用不锈钢和硬质合金,使用寿命长。也可使用耐温耐腐塑料、密封性好,在真空系统中也已广泛使用。
(3)涡轮球阀操作方便,开闭迅速,从全开到全关只要旋转90°,便于远距离的控制。
(4)紧装置:为防止阀门开关误操作,在阀门全开、全关位置有锁定孔,确保阀门处于正确的位置。
(5)在全开或全闭时,球体和阀座的密封面与介质隔离,介质通过时,不会引起阀门密封面的侵蚀。
Q341F-10/16/25P不锈钢涡轮球阀用途和适应范围:
不锈钢阀体、蜗轮箱等零件组成。其密封形式主要有软密封球阀和硬密封球阀两大类。常温型采用四氟密封,高温型可采用对位聚苯或金属硬密封。具有磨擦系数低、操作力矩小、泄露量最高可达零泄露等优点,多种阀座材料可供选择,适应范围更广。广泛应用与石油、化工、冶金、轻工、造纸、电站、制冷等工作领域。
Q341F-10/16/25P不锈钢涡轮球阀技术规范:
设计依据 |
国标系列 |
美标系列 |
|
设计标准 |
GB/T12237 |
AP16D |
ANSIB16.34 |
法兰连接结构长度 |
GB/T12221 |
AP16D |
ANSIB16.10 |
结构长度(焊接) |
GB/T15188.1 |
AP16D |
ANSIB16.10 |
连接法兰 |
GB/T9113 |
ANSIB16.5、B16.47 |
|
对焊端 |
GB/T12224 |
ANSIB16.25 |
|
试验和检验 |
GB/T9092 |
AP16D |
AP1598 |
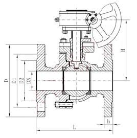
Q341F-10/16/25P不锈钢涡轮球阀结构图:

Q341F-10/16/25P不锈钢涡轮球阀主要性能参数:
试验压力(Mpa) |
公称压力(Mpa) |
压力级(Class) |
|||||||||||
1.6 |
2.5 |
4.0 |
6.4 |
10.0 |
16.0 |
25.0 |
150 |
300 |
400 |
600 |
900 |
1500 |
|
强度试验 |
2.4 |
3.8 |
6.0 |
9.6 |
15.0 |
24 |
37.5 |
3.1 |
7.8 |
10.2 |
15.3 |
23.1 |
38.4 |
密封试验 |
1.8 |
2.8 |
4.4 |
7.0 |
11.0 |
17.6 |
27.5 |
2.2 |
5.6 |
7.5 |
11.2 |
16.8 |
28.1 |
气密试验 |
0.5-0.7 |
||||||||||||
工作温度 |
PTEE≤150℃PPLE≤300℃碳纤≤350℃ |
||||||||||||
适用介质 |
C:水、油、蒸气P:硝酸类(温度≤200℃)R:醋酸类(温度≤200℃) |
||||||||||||
Q341F-10/16/25P不锈钢涡轮球阀主要零件材质:
序号 |
零件名称 |
材质 |
|
GB |
ASTM |
||
1 |
阀体 |
WCB |
A2116-WCB |
2 |
密封圈 |
PTFE |
PTFE |
3 |
球体 |
1C18Ni9Ti |
SS304 |
4 |
螺母 |
35 |
A194-2H |
5 |
螺柱 |
35CrMoA |
A193-B7 |
6 |
石体 |
WCB |
A216-WCB |
7 |
垫片 |
柔性石墨+不锈钢 |
B12.10-304F/.G |
8 |
填料 |
PTFE |
PTFE |
9 |
填料压盖 |
WCB |
A2116-WCB |
10 |
定位片 |
25 |
A105 |
11 |
挡圈 |
65Mn |
AISI1066 |
12 |
手柄 |
K33 |
A47-667 |
13 |
阀杆 |
1Cr33 |
A276-410 |
14 |
螺钉 |
35 |
A193-B7 |
15 |
止推垫片 |
PTFE |
PTFE |
Q341F-10/16/25P不锈钢涡轮球阀产品外形及结构尺寸:
DN |
L |
D |
H |
重量/kg |
125 |
320 |
245 |
542 |
110 |
150 |
360 |
280 |
572 |
130 |
200 |
457 |
335 |
638 |
200 |
250 |
533 |
405 |
828 |
245 |
300 |
610 |
460 |
948 |
500 |
订货须知:
一、①Q341F-10/16/25P不锈钢涡轮球阀产品名称与型号②Q341F-10/16/25P不锈钢涡轮球阀口径③是否带附件以便我们的为您正确选型。
二、若已经由设计单位选定Q341F-10/16/25P不锈钢涡轮球阀型号,请按Q341F-10/16/25P不锈钢涡轮球阀型号直接向我们标光阀门销售部订购。
三、当使用的场合非常重要或环境比较复杂时,请您尽量提供设计图纸和详细参数,由我们标光阀门专家为您审核把关。
尊敬的客户:
欢迎您访问我们的网站//www.chefcomm.com,首先感谢您对我们标光阀门的关注,如果您对我们的产品、服务有任何建议或者疑问的话,请立即联系我们!我们一定会尽心尽力为您提供优质的服务!!!




