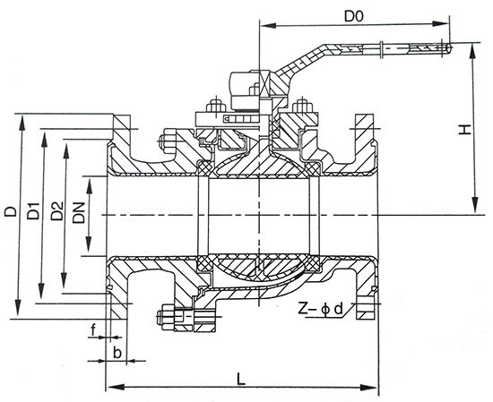
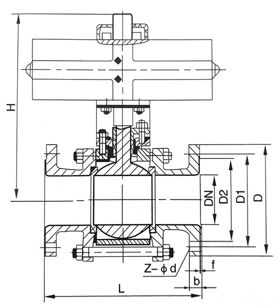
衬氟球阀型号和结构示意图
衬氟球阀型号:
衬氟球阀常见的型号有:Q941F46-10/16C电动衬氟球、Q641F46-10/16C气动衬氟球、Q341F46-10/16C衬氟涡轮球、Q41F46-10/16C衬氟手柄球等等。
衬氟球阀结构示意图:
手动衬氟球阀结构示意图

气动衬氟球阀结构示意图


衬氟球阀型号:
衬氟球阀常见的型号有:Q941F46-10/16C电动衬氟球、Q641F46-10/16C气动衬氟球、Q341F46-10/16C衬氟涡轮球、Q41F46-10/16C衬氟手柄球等等。
衬氟球阀结构示意图:
手动衬氟球阀结构示意图

气动衬氟球阀结构示意图

